象屿虹桥悦府叠墅(下叠)150平米

一楼客、餐厅 效果图

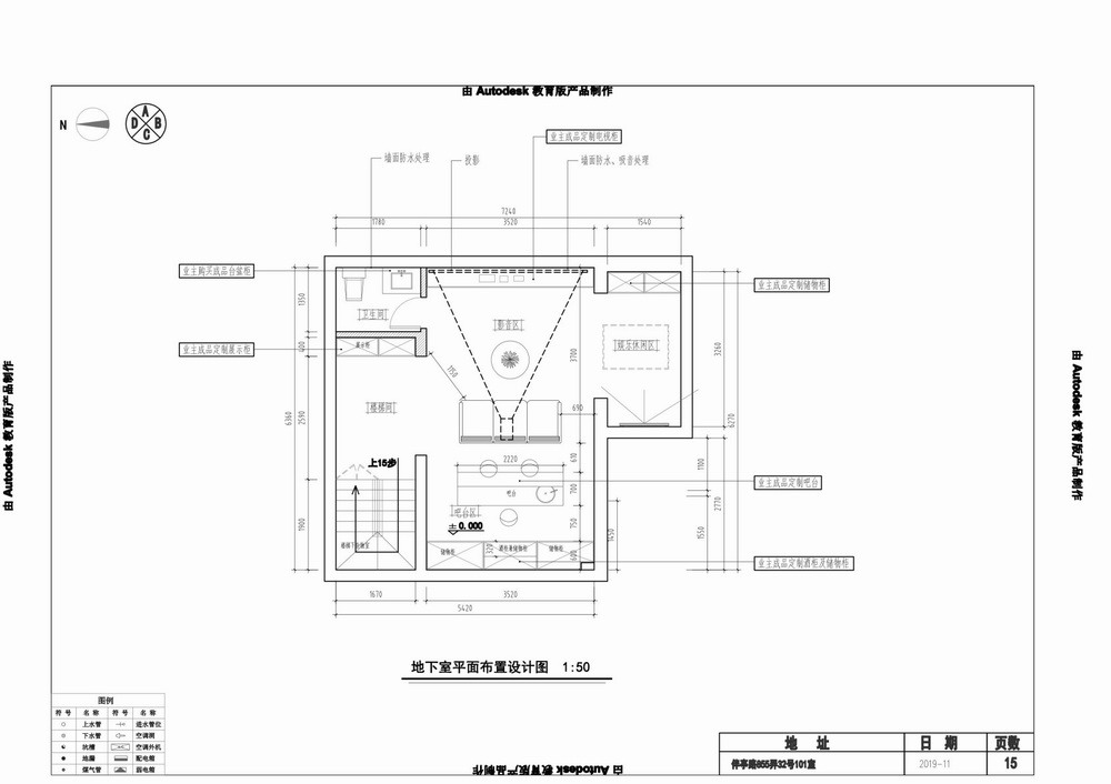
象屿虹桥悦府叠墅(下叠)150平米

地下室 效果图

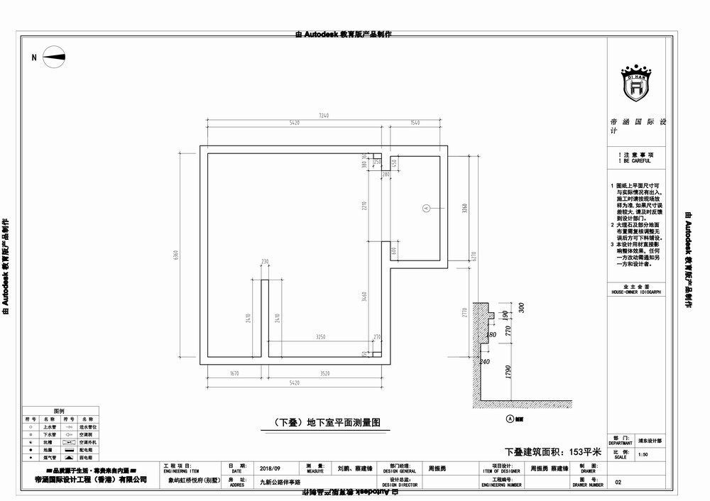
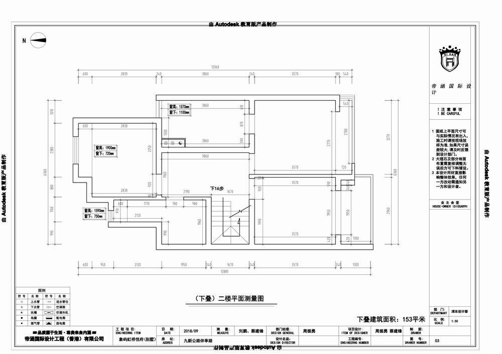
象屿虹桥悦府叠墅(下叠)150平米

原始测量图

象屿虹桥悦府叠墅(下叠)150平米

原始测量图

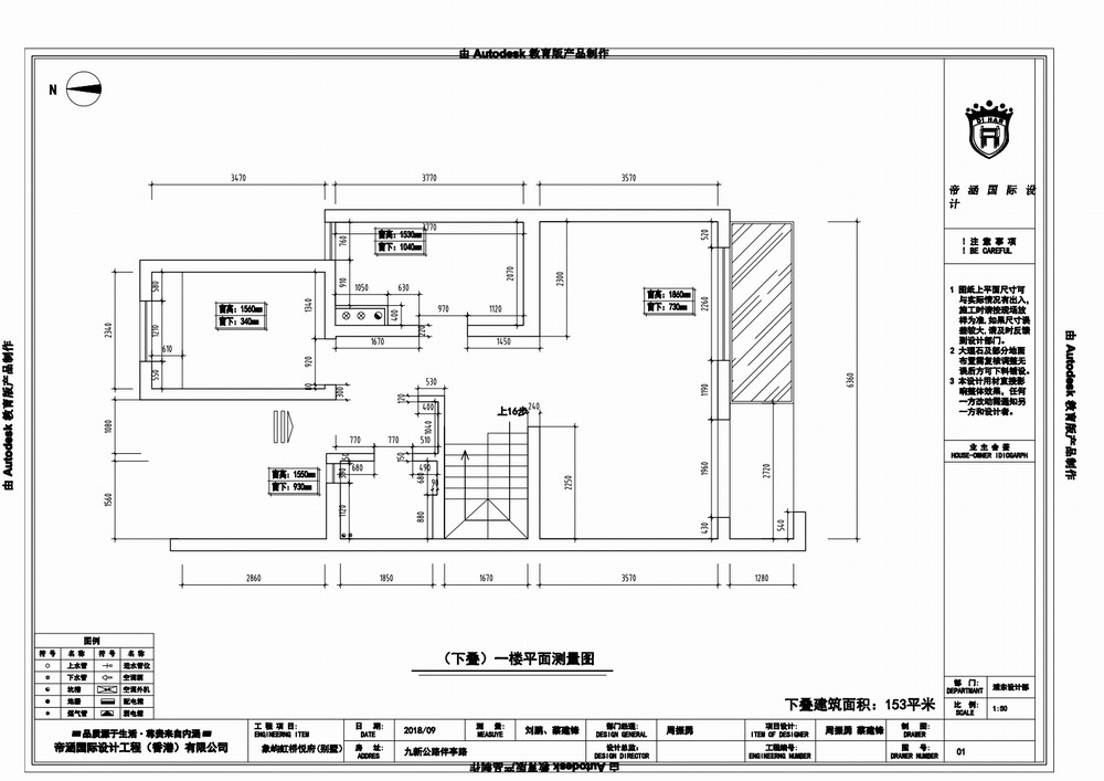
象屿虹桥悦府叠墅(下叠)150平米

原始测量图

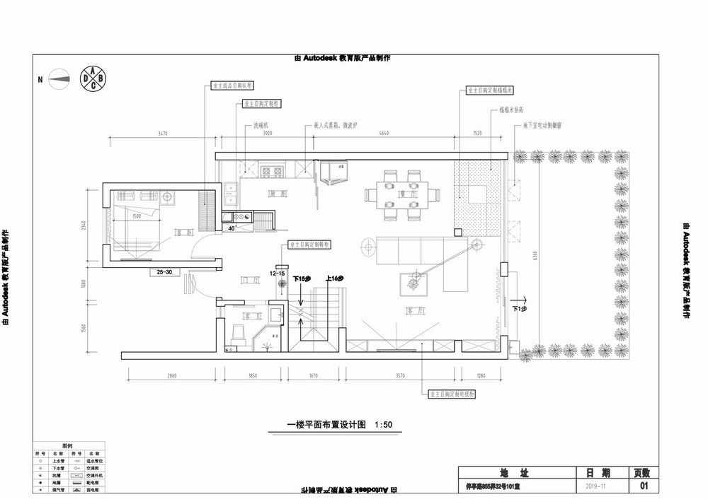
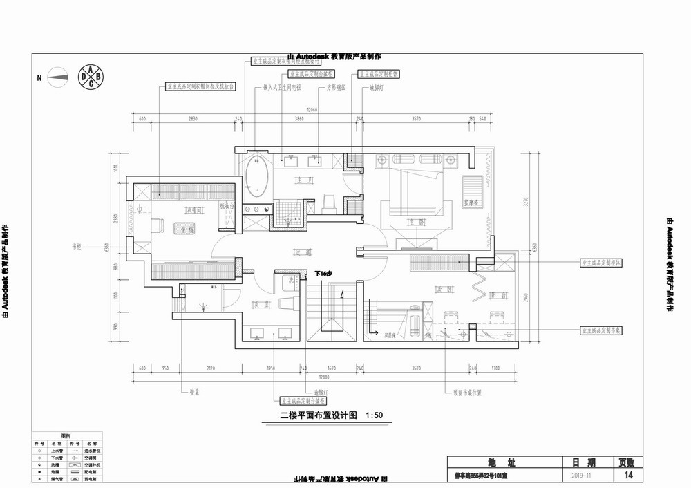
象屿虹桥悦府叠墅(下叠)150平米

平面布局方案图

象屿虹桥悦府叠墅(下叠)150平米

平面布局方案图

象屿虹桥悦府叠墅(下叠)150平米

平面布局方案图

021- 31421126 15001712586
取消
微信客服
添加微信好友,详细了解产品业务。
X