湖畔天下 (联排)280平米

一楼客厅效果图

湖畔天下 (联排)280平米

二楼主卧效果图

湖畔天下 (联排)280平米

三楼楼梯间学习区效果图

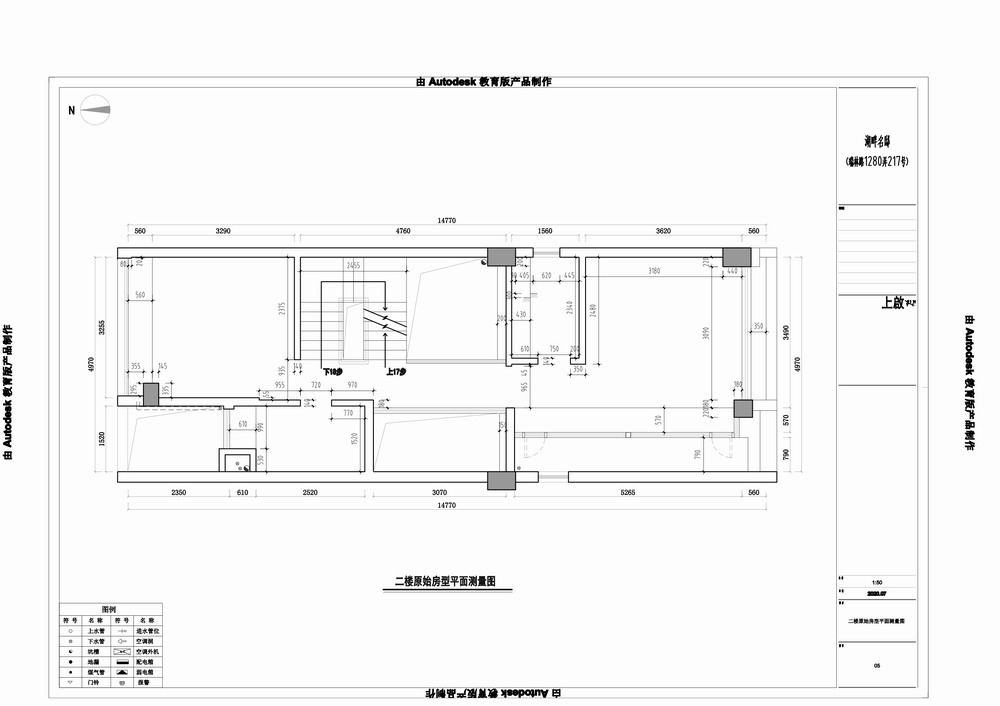
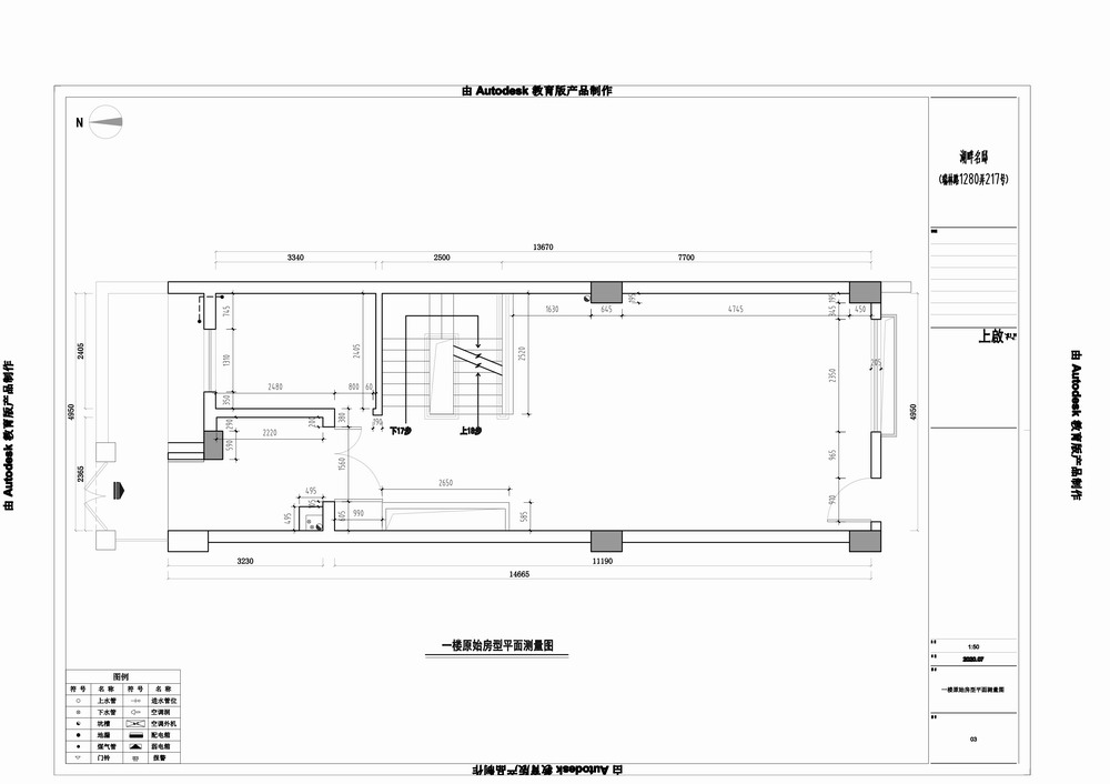
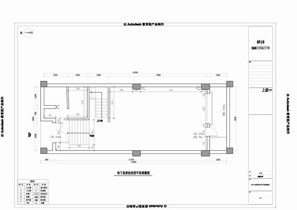
湖畔天下 (联排)280平米

原始测量图

湖畔天下 (联排)280平米

原始测量图

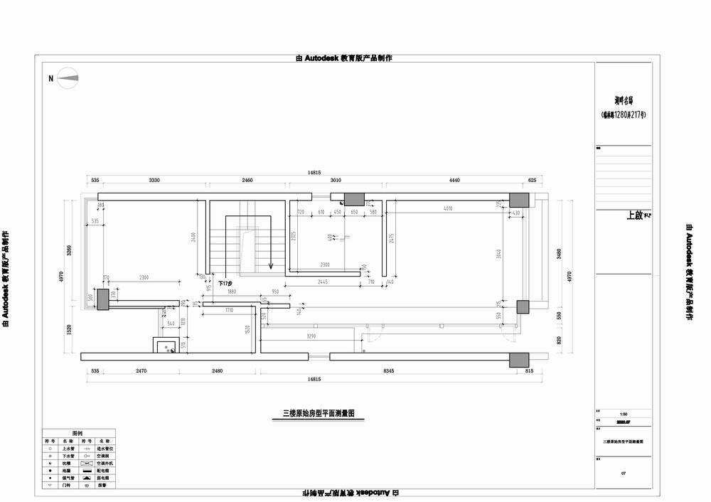
湖畔天下 (联排)280平米

原始测量图

湖畔天下 (联排)280平米

原始测量图

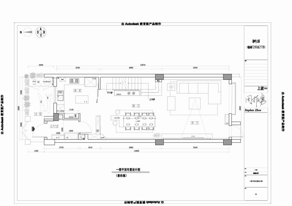
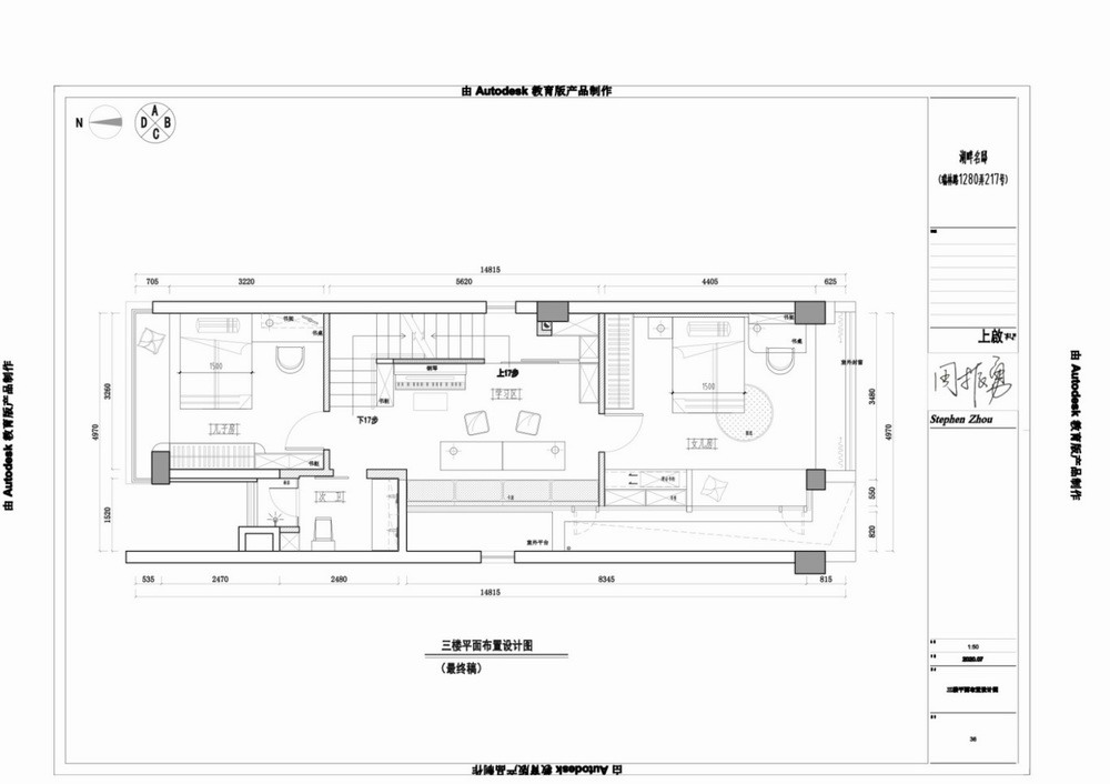
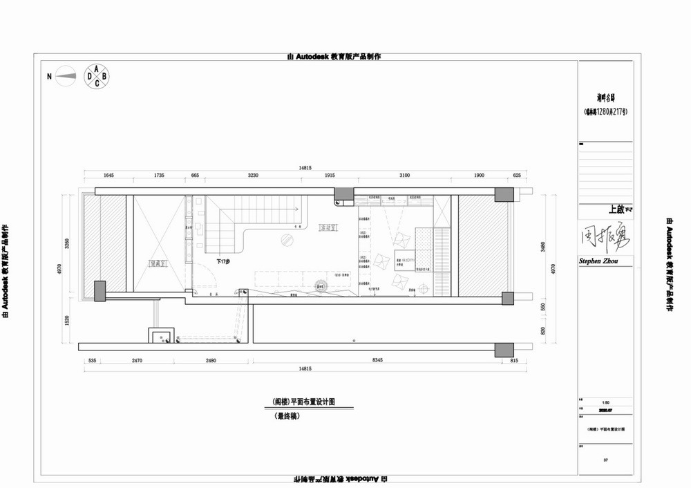
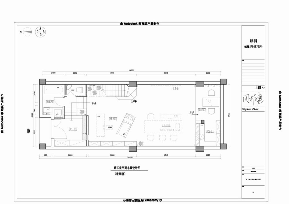
湖畔天下 (联排)280平米

平面布局方案图

湖畔天下 (联排)280平米

平面布局方案图

湖畔天下 (联排)280平米

平面布局方案图

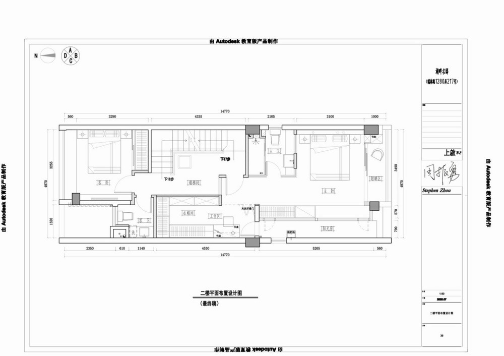
湖畔天下 (联排)280平米

平面布局方案图

湖畔天下 (联排)280平米

平面布局方案图

021- 31421126 15001712586
取消
微信客服
添加微信好友,详细了解产品业务。
X