欢迎访问上海冠明建筑装饰有限公司官方网站
网站首页
|
联系我们
网站首页
关于冠明
案例展示
工装案例
家装案例
服务项目
工程项目
办公室装修
公寓装修
商业空间
家装项目
家庭装修
别墅装修
图纸设计
图纸设计
服务流程
服务流程
新闻资讯
新闻资讯
行业新闻
合作伙伴
联系我们
021- 31421126
立即搜索
案例展示
冠明建筑 ● 海量案例
选择我们 选择放心的建筑服务
工装案例
家装案例
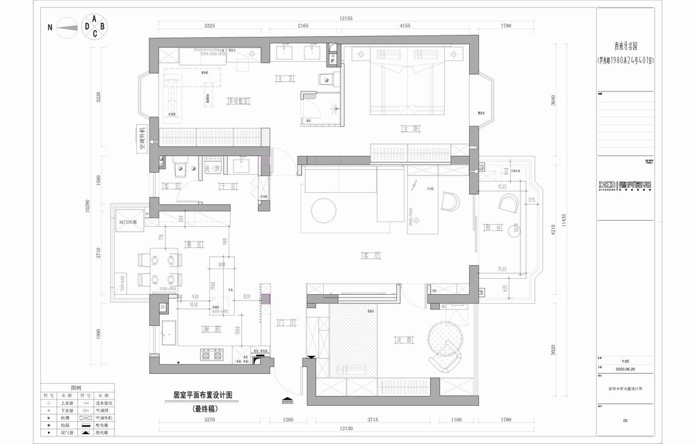
西班牙名苑 (公寓房)150平米
客、餐 厅(效果图)
西班牙名苑 (公寓房)150平米
客、餐 厅(实景图)
西班牙名苑 (公寓房)150平米
主卧(效果图)
西班牙名苑 (公寓房)150平米
儿子房(效果图)
西班牙名苑 (公寓房)150平米
电话
微信
产品
首页
021- 31421126
15001712586
取消
微信客服
添加微信好友,详细了解产品业务。
X